Торгово-офисное помещение ул. Республики 237/2
| Населенный пункт | Тюмень |
|---|---|
| Район города | Ленинский округ |
| Улица | улица Республики |
| Номер дома | 237/2 |
Описание
БЕЗ КОМИССИИ ДЛЯ АРЕНДАТОРА!
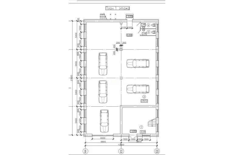
В аренду предлагается торговое помещение площадью 580 кв.м., расположенное на 1 этаже административного здания. Стоимость аренды: 580 000 руб./мес. Предусмотрен обеспечительный платеж.
- Высота потолков: 4 м
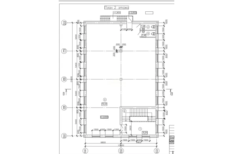
- Этаж: 1 из 2
- Планировка: открытая
- 2 отдельных входа с улицы (2-я линия домов)
- Косметический ремонт
- Статус помещения: без отделки, возможна адаптация под арендатора
- Коммуникации: водопровод, канализация, электричество (мощность – 25 кВт), отопление
- Парковка: у здания (на улице)
- Коммунальные услуги оплачиваются отдельно
Отлично подойдет для магазина, выставочного зала, точки обслуживания и других торговых форматов.
Подписывайтесь на наш аккаунт, чтобы оставаться в курсе новых выгодных предложений по коммерческой недвижимости!
| Сведения о недвижимости | |
|---|---|
| ID | 15607 |
| Коммунальные услуги включены | Нет |
| Тип здания | Административное здание |
| Тип парковки | На улице |
| Вход cian (avito) | Отдельный с улицы |
| Отделка помещения коммерческая | Без отделки |
| Залог (avito) | 1 месяц |
| Тип коммерческой | Торговое помещение |
| Площадь, кв.м. | 580 |
| Этаж | 1 |
| Этажность | 2 |
| Высота потолков м. | 4 |
| Отопление - коммерческая avito | Автономное |
| Стоимость | 580 000 руб. |











