Торговое помещение 160 м2 ул. Семакова 21
| Населенный пункт | Тюмень |
|---|---|
| Улица | улица Семакова |
| Номер дома | 21 |
Описание
АРЕНДА БЕЗ КОМИССИИ!!!
Характеристики и расположение объекта:
- Исторический центр
- В 100 метрах находится городская поликлиника 3
- Рядом со зданием располагается бесплатная парковка на 19 машиномест
- В шаговой доступности четыре института , Поликлиника , банки.
- 1 линия, 1 этаж
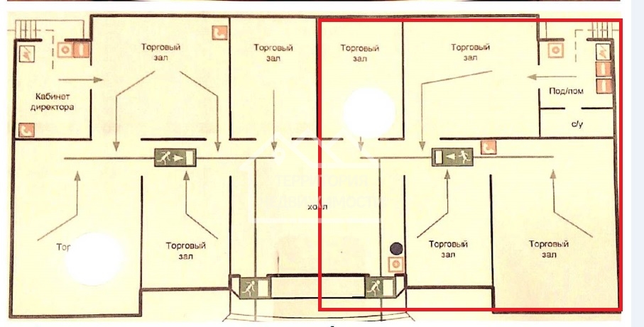
- Общая площадь помещения 320кв.м.
- Сдаваемая площадь помещения 160 кв.м., с отдельной входной группой
- Имеется 2 эвакуационных выхода
- Высота потолка 3.75 метра
- Отличный ремонт
- Выделенная электрическая мощность 6 кВт, проводка новая
- Вентиляция,охранная,пожарная сигнализация
- Санузел имеется
- Обеспечительный платеж за последний месяц
- Коммунальные платежи оплачиваются отдельно
Если Вас заинтересовал объект, перезвоните нам и мы организуем просмотр!
| Сведения о недвижимости | |
|---|---|
| ID | 3071 |
| Коммунальные услуги включены | Нет |
| Тип коммерческой | Торговое помещение |
| Площадь, кв.м. | 160 |
| Этаж | 1 |
| Этажность | 6 |
| Высота потолков м. | 3.8 |
| Стоимость | 240 000 руб. |














