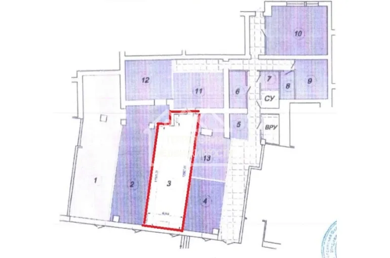
Торговое помещение 54 м² уд.Щербакова 98
| Населенный пункт | Тюмень |
|---|---|
| Район города | Центральный |
| Улица | улица Щербакова |
| Номер дома | 98 |
Описание
Аренда БЕЗ КОМИССИИ!
Расположение:
- Первая линия ул.Щербакова
- район аквапарка "ЛетоЛето"
- В 100 метрах остановка общественного транспорта 1-ый Заречный микрорайон
- Рядом со зданием находится общедоступная бесплатная парковка на 50 машиномест
Характеристики:
- Первый этаж
- Отдельный вход
- Площадь 54 кв.м.
- Высота потолка 4 м
- Требуется ремонт
- Выделенная электрическая мощность от 20 кВт
- Возможно размещение вывески на фасаде здания
- Санузел имеется
- Все коммунальные платежи оплачиваются отдельно
- Помещение отлично подойдет под ритейл, офисы, индустрию красоты,медицину и т.д.
Вам понравилось помещение и хотите его посмотреть?
Свяжитесь с нами! Наш специалист организует просмотр и ответит на Ваши вопросы!
| Сведения о недвижимости | |
|---|---|
| ID | 17390 |
| Коммунальные услуги включены | Нет |
| Тип здания | встроенное помещение |
| Тип парковки | На улице |
| Вход cian (avito) | Отдельный с улицы |
| Отделка помещения коммерческая | Офисная |
| Залог (avito) | 1 месяц |
| Тип коммерческой | Торговое помещение |
| Площадь, кв.м. | 54 |
| Этаж | 1 |
| Этажность | 9 |
| Высота потолков м. | 4 |
| Отопление - коммерческая avito | Центральное |
| Стоимость | 108 000 руб. |




