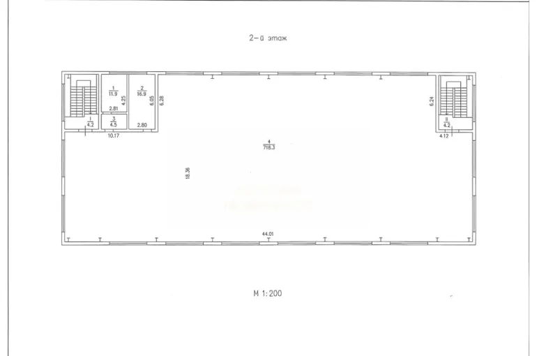
Торговое помещение (можно делить) 750 кв.м. Чаплина 43
| Населенный пункт | Тюмень |
|---|---|
| Район города | Калининский |
| Улица | улица Чаплина |
| Номер дома | 43 |
Описание
Аренда без комиссии!
Расположение и характеристики объекта:
- Калининский округ
- 2 этаж
- Площадь 750 кв.м.
- 1 линия ул.Николая Чаплина
- Большой трафик автомобилей
- Густонаселенный район
- Рядом находится общедоступная бесплатная парковка
- Рядом находится остановка общественного транспорт
- На 1 этаже расположены Магнит, аптека, зоотовары, табачные изделия, автозапчасти
- На полу керамогранит
- Витражные окна 2.4 м.
- Высота потолка 5 м
- Две лестницы с двух сторон здания
- Помещение свободного назначения
- Выделенная электрическая мощность 50 кВт
- Коммунальные оплачиваются отдельно
- Обеспечительный платеж
Вам понравилось помещение и хотите его посмотреть?Звоните!
| Сведения о недвижимости | |
|---|---|
| ID | 9470 |
| Коммунальные услуги включены | Нет |
| Тип здания | Административное здание |
| Тип парковки | На улице |
| Вход cian (avito) | Общий с улицы |
| Отделка помещения коммерческая | Чистовая |
| Залог (avito) | 1 месяц |
| Тип коммерческой | Торговое помещение |
| Площадь, кв.м. | 750 |
| Этаж | 2 |
| Этажность | 2 |
| Высота потолков м. | 5 |
| Отопление - коммерческая avito | Центральное |
| Стоимость | 487 500 руб. |





























