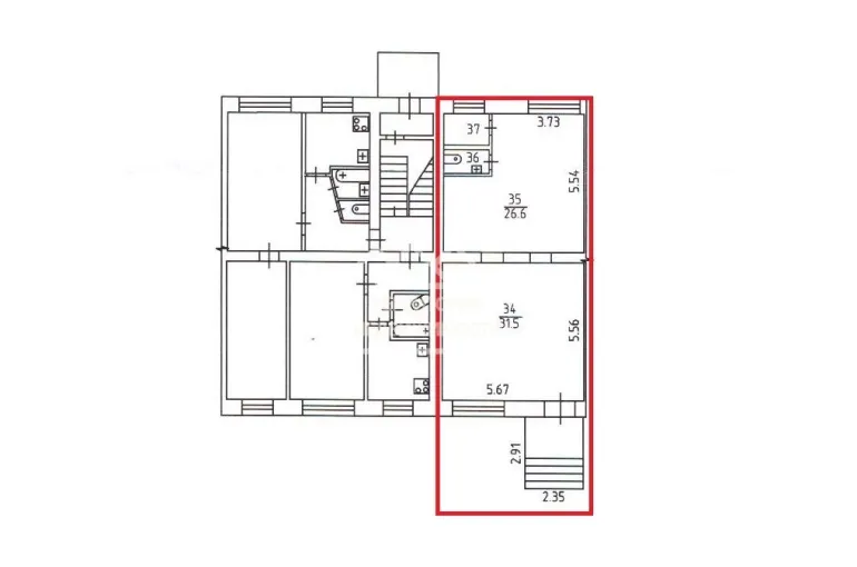
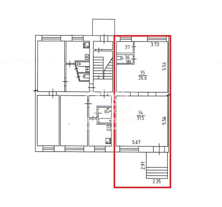
Торговое помещение ул.Холодильная 55
| Населенный пункт | Тюмень |
|---|---|
| Район города | Ленинский |
| Улица | улица Холодильная |
| Номер дома | 55 |
Описание
СДАЕТСЯ с 01.10.2025г.!
Аренда без комиссии!
Расположение:
- Пересечение ул.Холодильной/ул.50 лет Октября
- Рядом остановки общественного транспорта Родильный дом 2, Прокуратура Тюменской области
- Рядом со зданием находится общедоступная бесплатная парковка на 20 машиномест
- Высокий пешеходный и автомобильный трафик
Характеристики:
- Первая линия
- Первый этаж
- Отдельный вход
- Высота потолка 2.50 м
- Косметический ремонт
- Выделенная электрическая мощность 10 кВт
- Санузел имеется
- Электричество, вода оплачивается отдельно
- Обеспечительный платеж.
Хотите посмотреть помещение или задать вопросы?
Позвоните нам или напишите ваш номер и имя в сообщения и специалист перезвонит вам !
| Сведения о недвижимости | |
|---|---|
| ID | 17012 |
| Коммунальные услуги включены | Нет |
| Тип здания | Жилой дом |
| Тип парковки | На улице |
| Вход cian (avito) | Отдельный с улицы |
| Отделка помещения коммерческая | Офисная |
| Залог (avito) | 1 месяц |
| Тип коммерческой | Торговое помещение |
| Площадь, кв.м. | 62 |
| Этаж | 1 |
| Этажность | 5 |
| Высота потолков м. | 2.6 |
| Отопление - коммерческая avito | Центральное |
| Стоимость | 86 800 руб. |















