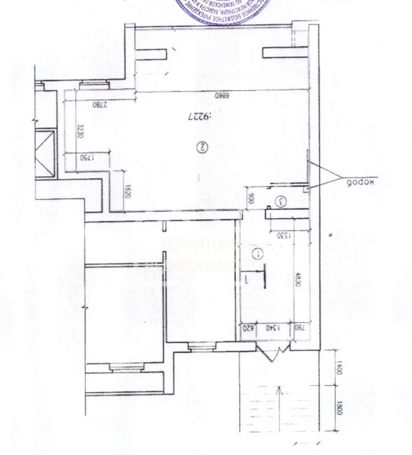
Торговое помещение ул.50 лет Октября 21а
| Населенный пункт | Тюмень |
|---|---|
| Район города | Центральный |
| Улица | улица 50 лет Октября |
| Номер дома | 21а |
Описание
Аренда без комиссии!
Расположение и характеристики объекта:
- Центральный округ
- 1 этаж
- площадь 72 кв.м.
- 1 линия
- Отдельный вход (со стороны улицы 50 лет октября)
- Помещение свободного назначения
- Имеется санузел
- Бесплатная парковка
- Коммунальные платежи оплачиваются отдельно
Вам понравилось помещение и хотите его посмотреть?Звоните!
| Сведения о недвижимости | |
|---|---|
| ID | 944 |
| Коммунальные услуги включены | Нет |
| Тип здания | Жилой дом |
| Тип парковки | На улице |
| Вход cian (avito) | Отдельный с улицы |
| Отделка помещения коммерческая | Офисная |
| Залог (avito) | 1 месяц |
| Тип коммерческой | Торговое помещение |
| Площадь, кв.м. | 72 |
| Этаж | 1 |
| Этажность | 9 |
| Высота потолков м. | 2.5 |
| Отопление - коммерческая avito | Центральное |
| Стоимость | 72 000 руб. |


















