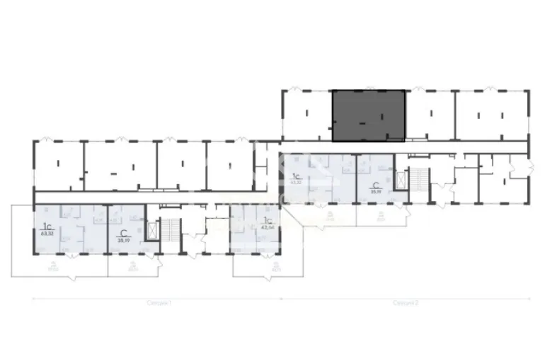
Помещение свободного назначения 64,3м2 ул.Василия Шамова,8
| Населенный пункт | Тюмень |
|---|---|
| Район города | Ленинский |
| Улица | улица Василия Шамова |
| Номер дома | 8 |
Описание
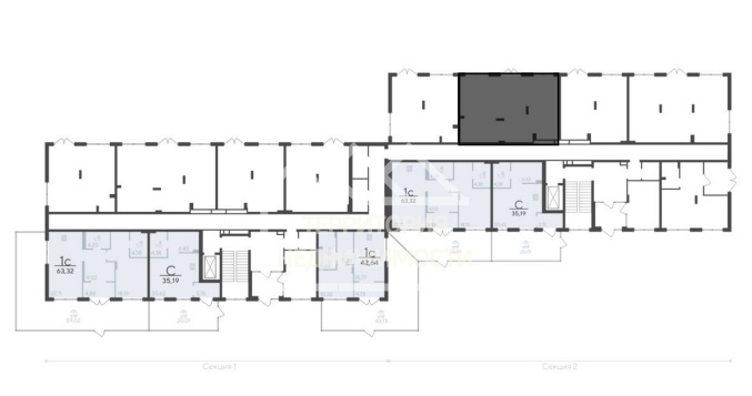
Торговое помещение ул. Западносибирская 37/2 ( корпус 3 секция 3)
| Сведения о недвижимости | |
|---|---|
| ID | 15328 |
| Тип здания | Жилой дом |
| Тип парковки | На улице |
| Вход cian (avito) | Отдельный с улицы |
| Отделка помещения коммерческая | Без отделки |
| Ремонт коммерческая | черновая отделка |
| Статус готовности | В эксплуатации |
| Тип коммерческой | Помещение свободного назначения |
| Площадь, кв.м. | 64.3 |
| Этаж | 1 |
| Этажность | 4 |
| Высота потолков м. | 2.97 |
| Отопление - коммерческая avito | Центральное |
| Стоимость | 8 050 000 руб. |








