Помещение 44 кв.м. ул.Газовиков 33к1
| Населенный пункт | Тюмень |
|---|---|
| Район города | жилой комплекс Центральный |
| Улица | улица Газовиков |
| Номер дома | 33к1 |
Описание
АРЕНДА БЕЗ КОМИССИИ!
Расположение и характеристики объекта:
- Центральный округ, 2-й Заречный микрорайон
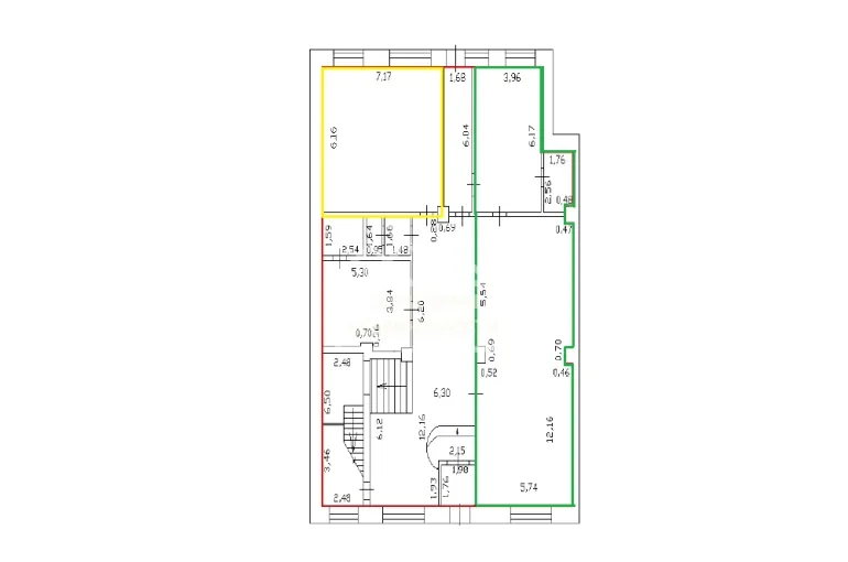
- Площадь 44 кв.м.
- На плане выделено желтым цветом
- 1 линия
- 1 этаж
- Косметический ремонт
- Есть санузел на этаже, комната для приема пищи.
- Высота потолка около 3 м
- Коммунальные платежи включены в стоимость аренды!
- Доступ в помещение с 08.00 ч. до 17.00 ч.
Вам понравилось помещение и хотите его посмотреть? Звоните!
| Сведения о недвижимости | |
|---|---|
| ID | 14971 |
| Коммунальные услуги включены | Да |
| Тип парковки | На улице |
| Вход cian (avito) | Общий с улицы |
| Отделка помещения коммерческая | Офисная |
| Залог (avito) | 1 месяц |
| Тип коммерческой | Торговое помещение |
| Площадь, кв.м. | 44.56 |
| Этаж | 1 |
| Этажность | 3 |
| Высота потолков м. | 3 |
| Стоимость | 40 104 руб. |












